
Подземный и наземный паркинги, детские площадки, отвечает всем современным требованиям.

Школы и детские сады в шаговой доступности, городок Аттрационов, ТЦ Евролэнд и другие магазины, Транспорт и центральные дороги
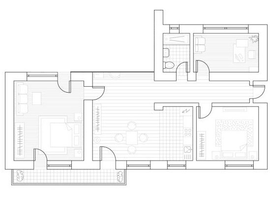
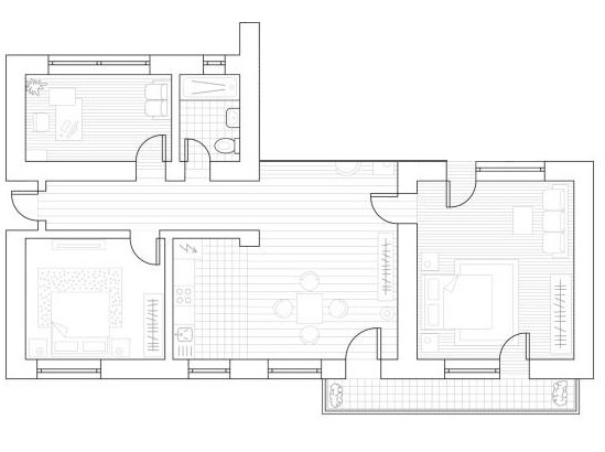
Мы предлагаем квартиры-студии, 2х-комнатные, 3х-комнатные и 1-комнатные квартиры, а так же подземный паркинг. Площади квартир варьируются от 28 кв.м. до 74 кв.м.
В нашем жилом комплексе предусмотрен подземный паркинг на 17 машино-мест.
смотреть планировки